75mq
€185000
Rif.
SPS823
Zona
Macro Zona
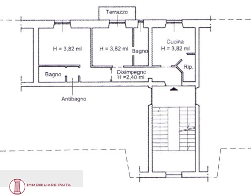
rif.SPS823-CENTRO/UMBERTINO; in zona centrale, a pochi minuti a piedi dalla stazione ferroviaria e dall'area pedonale di Spezia, proponiamo in vendita un appartamento di 75mq al secondo piano senza ascensore.
La disposizione, attualmente studiata per attività ricettiva è così composta:
ingresso, tre camere matrimoniali, ognuna con il bagno en-suite, di cui una con balcone.
L'immobile è stato integralmente riqualificato e viene venduto comprensivo degli arredi interni.
TERMOAUTONOMO ED ARIA CONDIZIONATA
Euro185000
-
Comune
-
Macro Zona
-
Zona
-
Contratto
-
Tipologia Immobile
-
Stato Immobile
- Piano: 2° Piano di 3 piani
-
Classe Energetica
- Ascensore: No
-
Spese Condominiali MensiliNo
-
Importo Spese Condominiali30
- Anno d'Epoca:
1900
-
Numero Balconi1
Ascensore: No
Arredato
Animali Ammessi
Infissi Interni doppio vetro/pvc
Climatizzatore
Riscaldamento Autonomo
Balcone
Mappa
44.1080588,9.8126195
