CINQUE VANI CON TERRAZZA E POSTO AUTO

mq immobile
110mq
camere immobile3 camere
vani immobile5 vani
bagni immobile2 bagni
€340000

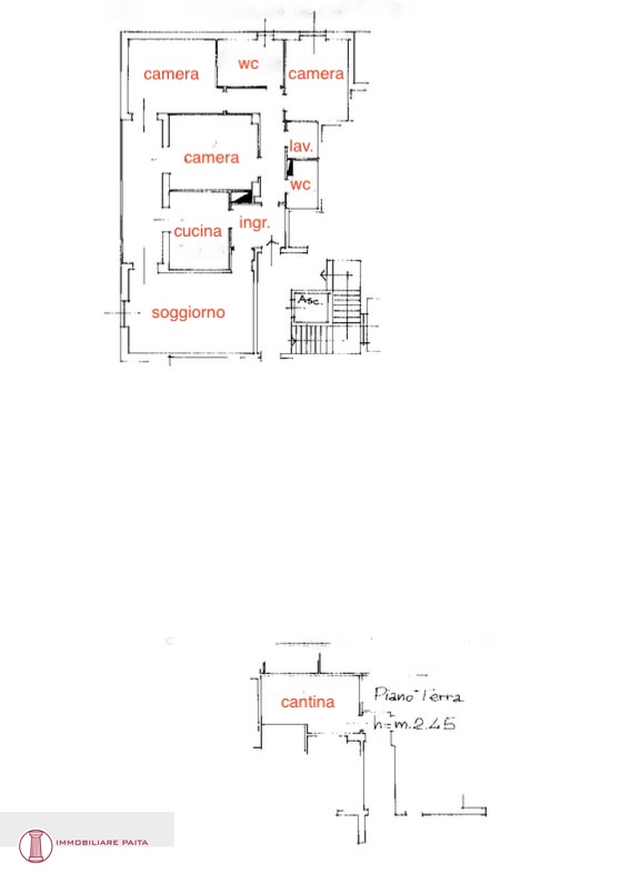
rif. SPT1510913-SAN TERENZO; in posizione molto comoda per raggiungere le spiaggie a piedi, ma allo stesso tempo fuori dalla ZTL, proponiamo in vendita un appartamento di cinque vani al terzo piano di un palazzo di cinque piani, così composto: ingresso in disimpegno, ampio soggiorno, cucina pranzabile, disimpegno zona notte, due camere matrimoniali, una camera singola, doppi servizi e ripostiglio lavanderia; ogni ambiente si affaccia su una terrazza coperta e vivibile.  L'immobile, pur non essendo stato riqualificato di recente è abitabile da subito, il condomino invece è stato riqualificato interamente. Completa la proprietà un posto auto in zona condominiale ed una cantina di circa 9mq. 
L'esposizione, angolare ed aperta è da considerarsi un fattore positivo per la luminosità di ogni ambiente.
TERMOAUTONOMO
340000euro

0187981727
3394746440.

  • Piano: 3° Piano di 4 piani
  • Classe Energetica
  • Ascensore: SI

  • Spese Condominiali Mensili
    Si
  • Importo Spese Condominiali
    50
  • Anno d'Epoca:

    1980

  • Numero Terrazzi
    1
  • Mq Terrazzo
    10m²

Ascensore: SI
Esposizione Esterna Doppia
Animali Ammessi
Porta Blindata
Bagno con Finestra
Doppi Servizi
Ripostiglio
Cantina
Posto Auto
Impianto Allarme
Videocitofono
Tapparelle
Infissi Interni doppio vetro/legno
Risc. Autonomo a radiatori - gas
Terrazza

Planimetria

Mappa

44.0884444,9.8946544

Contattaci