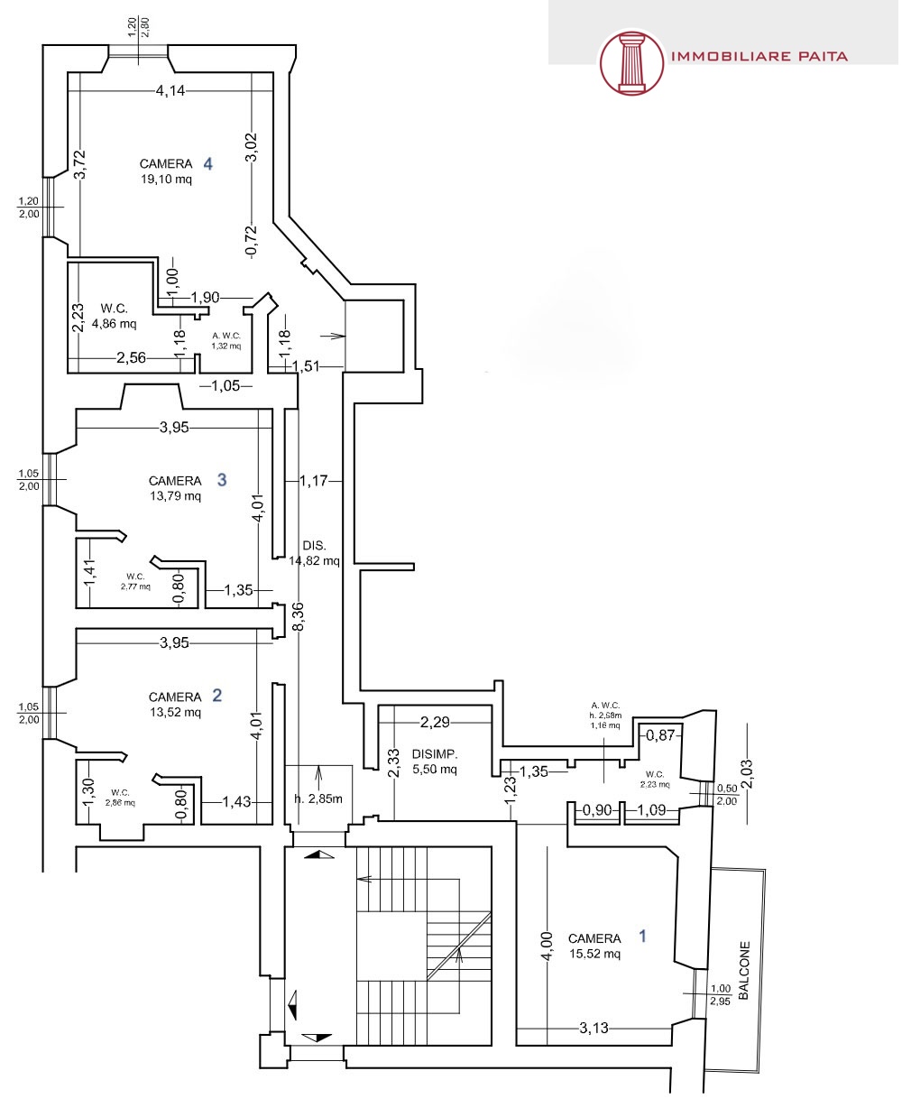
rif.SPT150916-CENTRO PEDONALE; proponiamo in vendita un appartamento di 125mq attualmente utilizzato come attività ricettiva ed ubicato in pieno centro pedonale, in una delle vie principali della città, servita da bar ed eleganti boutique.
La proprietà, al primo piano con ascensore, è composta da un ingresso in ampio disimpegno che fa da hall alla struttura, quattro suite, ognuna con il proprio bagno.
L'affittacamere è stato completamente ristrutturato e viene lasciato completo degli arredi, aria condizionate ed elettrodomestici attinenti all'uso; ogni suite può ospitare due persone, fatta eccezione per una più spaziosa con balcone, dove se ne possono accogliere tre.
La proposta è da considerarsi una rara opportunità per chi vuole investire ed immediatamente mettere a reddito il bene, poiché l'attività è già avviata con ottime recensioni dimostrabili.
410.000euro
0187981727
3394746440
www.immobiliarepaita.it
-
Comune
-
Macro Zona
-
Zona
-
Contratto
-
Tipologia Immobile
-
Stato Immobile
- Piano: 1° Piano di 4 piani
-
Classe Energetica
- Ascensore: SI
-
Spese Condominiali MensiliSi
-
Importo Spese Condominiali50
- Anno d'Epoca:
1900
-
Numero Balconi1
Mappa
44.1033269,9.8161112
